Mieszkanie na sprzedaż Szczecin, Prawobrzeże

3 pokoje
80.00 m²
8 437,50 zł/m2
2 piętro
4KAT-MS-22475
Oblicz ratę kredytu

675 000 zł

Mieszkanie na sprzedaż

Szczegóły oferty

Symbol oferty 4KAT-MS-22475
Powierzchnia 80,00 m²
Powierzchnia użytkowa [m2] 54,70 m²
Liczba pokoi 3
Liczba sypialni 2
Rodzaj budynku blok
Technologia budowlana pustak
Standard
Opłaty w czynszu wywóz nieczystości, wywóz śmieci, woda ciepła, sprzątanie, fundusz remontowy, Części wspólne
Opłaty wg liczników CO, prąd
Piętro 2
Liczba pięter w budynku 2
Garaż przy budynku
Stan lokalu bardzo dobry
Mies. czynsz admin. 540 PLN
Okna DREWNIANE NOWY TYP
Instalacje dobre
Balkon jest
Liczba balkonów 1
Rok budowy 2009
Widok las
Gaz brak
Dojazd asfalt
Ogrzewanie C.O. miejskie
Usytuowanie dwustronne
Mateusz Malutko

Mateusz Malutko

pośrednik w obrocie nieruchomościami lic. PPRN 7291
Nr licencji: 7291

Napisz wiadomość 31 Ofert

Opis nieruchomości

Na sprzedaż wyjątkowe, dwupoziomowe mieszkanie położone w zielonej i spokojnej części Szczecina — Dąbiu, przy ulicy Kurpiów, tuż przy lesie.

To idealna propozycja dla osób, które chcą połączyć komfort życia w mieście z bliskością natury. Cisza, tereny spacerowe, dużo zieleni i jednocześnie szybki dojazd do centrum miasta czy nad morze.

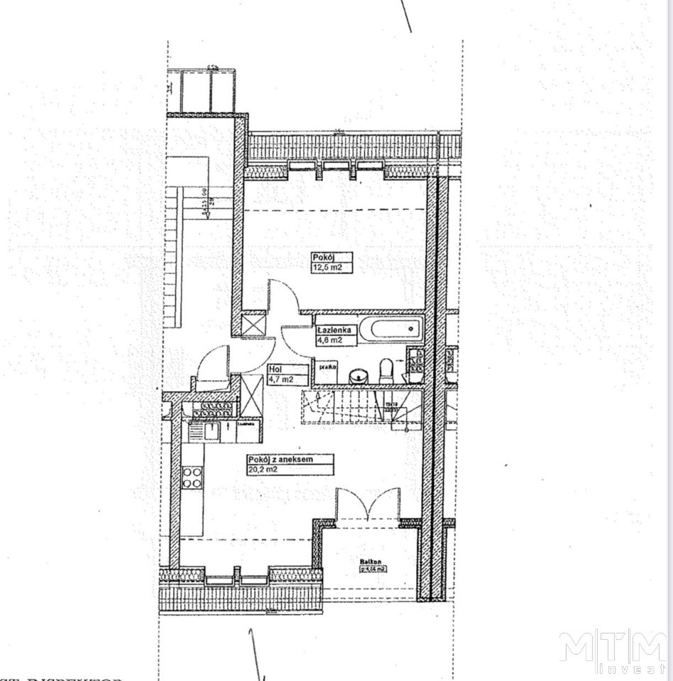
Mieszkanie znajduje się na drugim piętrze kameralnego budynku z 2009 roku. Powierzchnia użytkowa lokalu wynosi 54,70 m², natomiast całkowita powierzchnia to około 80 m².

Wnętrze jest jasne, przytulne i bardzo funkcjonalnie zaprojektowane. Duże okna oraz okna połaciowe sprawiają, że mieszkanie jest doskonale doświetlone i słoneczne.

Na pierwszym poziomie znajduje się:
– przestronny salon z aneksem kuchennym o powierzchni 20,02 m² z wyjściem na balkon,
– balkon o dodatkowej powierzchni 4,56 m²,
–  pokój o powierzchni 12,5 m², idealny jako sypialnia, pokój dziecięcy lub gabinet,
– elegancka łazienka z wanną i WC,
– funkcjonalny przedpokój z miejscem do przechowywania.

Nowoczesna zabudowa kuchenna wraz ze sprzętem AGD pozostaje w cenie mieszkania.

Na drugi poziom prowadzą stylowe drewniane schody o loftowym charakterze. Znajduje się tam otwarta przestrzeń z garderobą o powierzchni około 12,8 m², która może pełnić funkcję głównej sypialni, strefy relaksu lub komfortowego miejsca do pracy.

W cenie mieszkania pozostają:
– zabudowa kuchenna wraz ze sprzętem AGD,
– wyposażenie łazienki,
– wszystkie stałe zabudowy.

Pozostałe wyposażenie ruchome może zostać po indywidualnych ustaleniach.

Atuty nieruchomości:
- bezpośrednie sąsiedztwo lasu,
- spokojna i kameralna okolica,
- teren ogrodzony z placem zabaw,
- liczne miejsca parkingowe,
- funkcjonalny, dwupoziomowy układ,
- mieszkanie daje poczucie znacznie większej przestrzeni,


Czynsz administracyjny wynosi około 540 zł przy czteroosobowej rodzinie i obejmuje m.in. fundusz remontowy, utrzymanie części wspólnych oraz wywóz śmieci.

Dodatkowo płatny SEC (ogrzewanie oraz ciepła woda) według zużycia — średnio około 150–180 zł miesięcznie poza sezonem grzewczym oraz energia elektryczna według zużycia.

Lokalizacja zapewnia wygodę codziennego życia:
– w pobliżu szkoła, sklepy oraz tereny spacerowe,
– blisko jeziora Dąbie i terenów rekreacyjnych,
– około 10 minut do Outlet Park,
– szybki dojazd do autostrady,
– około 50 minut jazdy do Międzyzdrojów.

To mieszkanie idealnie sprawdzi się dla osób szukających przestrzeni z klimatem domu, blisko natury, ale bez rezygnacji z wygody życia w mieście.

Zapraszam do kontaktu i umówienia prezentacji. 


Prezentacja nieruchomości przy udziale agenta nieruchomości wiąże się z obowiązkiem podania swoich danych osobowych a także wyrażeniem pisemnej zgody na wykonanie usługi pośrednictwa w zakupie nieruchomości.

Kalkulatory

Kalkulator kredytowy

Wysokość raty

PLN
%

Kalkulator kosztów

Podatek od czynności cywilno-prawnych

Taksa notarialna
(opłata notarialna)

Wniosek o wpis do KW

VAT od prowizji
agencji nieruchomości

VAT od taksy notarialnej
(opłaty notarialnej)

Prowizja agencji nieruchomości

Wypisy aktu notarialnego

Razem

Uwaga: mogą wystąpić dodatkowe opłaty za założenie księgi wieczystej oraz ustanowienie hipoteki.

PLN
PLN
PLN
PLN
PLN
PLN
%
PLN

Podobne oferty

Mieszkanie na sprzedaż

Szczecin, Prawobrzeże

3 pokoje 54 m2 9 343,93 zł/m2

Mieszkanie na sprzedaż

Szczecin, Prawobrzeże

3 pokoje 64 m2 8 960,63 zł/m2

pośrednik w obrocie nieruchomościami lic. PPRN 7291

Proszę wprowadzić poprawne imię i nazwisko
Proszę wprowadzić poprawny numer telefonu
Proszę wprowadzić poprawny adres e-mail
Proszę zaznaczyć wymagane zgody
Rozwiąż równanie:
17 4
Niepoprawny wynik