Mieszkanie na sprzedaż Szczecin, Dąbie

2 pokoje
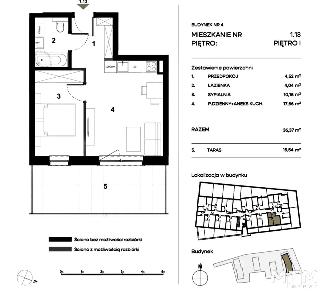
36.37 m²
13 720,10 zł/m2
1 piętro
KNG-MS-12397
Oblicz ratę kredytu

499 000 zł

Mieszkanie na sprzedaż
Nowa oferta

Szczegóły oferty

Symbol oferty KNG-MS-12397
Powierzchnia 36,37 m²
Powierzchnia użytkowa [m2] 36,37 m²
Powierzchnia balkonów/tarasów 15,54 m²
Liczba pokoi 2
Liczba sypialni 1
Rodzaj budynku budynek wielorodzinny
Standard
Opłaty wg liczników CO, prąd
Piętro 1
Liczba pięter w budynku 3
Garaż miejsce parkingowe przy budynku
Stan lokalu bardzo dobry
Mies. czynsz admin. 350 PLN
Czynsz zimowy 350 PLN
Okna nowe PCV
Balkon taras
Liczba tarasów 1
Rok budowy 2025
Woda ciepła - miejska
Dojazd asfaltowa/kostka
Ogrzewanie C.O. lokalne
Winda tak
Usytuowanie jednostronne
Drzwi antywłamaniowe tak
Klucze tak
Pomieszczenia
Powierzchnia pokoi 17,66 / 10,15 m2
Rodzaj kuchni aneks kuchenny - połączony z salonem
Powierzchnia kuchni 5 m2
Typ łazienki razem z wc
Liczba łazienek 1
Powierzchnia łazienki [m2] 4,04 m2
Glazura łazienki nowego typu
Liczba przedpokoi 1
Powierzchnia przedpokoi 4,52 m2
Mateusz Malutko

Mateusz Malutko

pośrednik w obrocie nieruchomościami lic. PPRN 7291
Nr licencji: 7291

Napisz wiadomość 31 Ofert

Opis nieruchomości

OFERTA NA WYŁĄCZNOŚĆ - KLUCZE W BIURZE 

Oferta sprzedaży nowego, komfortowego mieszkania położonego w Szczecinie - dzielnica Dąbie.


Mieszkanie znajduje się na I piętrze niskiego bloku mieszkalnego z widną. Powierzchnia użytkowa 36,37m2 + przestronny taras 15,54m2, dodatkowo do mieszkania przynależy prywatne zewnętrzne miejsce parkingowe ( w dodatkowej cenie 25.000 pln).

Mieszkanie zostało zaprojektowane przez architekta, co gwarantuje wysoki standard wykonania oraz funkcjonalność. 

Wysoki standard wykończenia
ogrzewanie podłogowe - sterowanie za pomocą termostatówtaras i nowy sprzęt AGD i RTV: telewizor, zmywarka, lodówka, piekarnik elektryczny, okap, płyta indukcyjna, pralka co oznacza zero dodatkowych wydatków na zakup i montaż sprzętu - dzięki temu mieszkanie jest gotowe do wprowadzenia od zaraz.

Mieszkanie składa się z:

  • Salonu z aneksem kuchennym (17,66 m²) który tworzy otwartą, jasną przestrzeń z wygodną sofą, częścią jadalną oraz w pełni wyposażonym aneksem kuchennym,
  • Sypialni (10,15 m²) z dużym łóżkiem, szafkami nocnymi i zabudowaną szafą,
  • Łazienki (4,04 m²) z przestronnym prysznicem, płytkami Paradyż zaprojektowanymi przez Gosię Baczyńską i bardzo szeroką szafką (140 cm.),
  • Przedpokoju (4,52 m²) z dużą, pojemną, zabudowaną szafą w której znajduje się pralka,
  • Tarasu (15,54 m²) na który możemy wyjść z salonu
Istnieje możliwość pozostawienia pełnego wyposażenia i umeblowania.

Do mieszkania przynależy miejsce postojowe(dodatkowo płatne 25 000 zł.).

Bardzo atrakcyjna lokalizacja:

Osiedle jest bardzo dobrze skomunikowane z centrum Szczecina i innymi miastami. W zaledwie kilka minut dojdziemy do przystanku SKM, a w 10/15 minut dojedziemy samochodem/pociągiem do najważniejszych części miasta. Inwestycja oferuje również łatwy dostęp do głównych tras wyjazdowych – ulicy Struga, DK10, autostrady A6 i drogi ekspresowej S3.

W najbliższym otoczeniu osiedla znajduje się wszystko, co jest potrzebne na co dzień:

  • Biedronka(minuta spacerem),
  • SKM, liceum, tereny zielone (3 minuty spacerem)
  • piekarnia, poczta, apteka, restauracja, weterynarz, kwiaciarnia, Drogeria Rossmann, Lidl, Netto (6 minut spacerem)
  • przedszkole, szkoła podstawowa, kawiarnia (10 minut spacerem)
  • lekarz (12 minut spacerem)
  • Jezioro Dąbie (20 minut spacerem)
  • Outlet Park, Leroy Merlin, Castorama, Galeria Gryf (6 minut samochodem)
  • Szybki wyjazd z miasta - obwodnica.
Mieszkanie gotowe do wydania od ręki.
 

Kalkulatory

Kalkulator kredytowy

Wysokość raty

PLN
%

Kalkulator kosztów

Podatek od czynności cywilno-prawnych

Taksa notarialna
(opłata notarialna)

Wniosek o wpis do KW

VAT od prowizji
agencji nieruchomości

VAT od taksy notarialnej
(opłaty notarialnej)

Prowizja agencji nieruchomości

Wypisy aktu notarialnego

Razem

Uwaga: mogą wystąpić dodatkowe opłaty za założenie księgi wieczystej oraz ustanowienie hipoteki.

PLN
PLN
PLN
PLN
PLN
PLN
%
PLN

Podobne oferty

Wirtualny spacer

Mieszkanie na sprzedaż

Szczecin, Dąbie

2 pokoje 47 m2 9 492,60 zł/m2
Wirtualny spacer
Nowa oferta

Mieszkanie na sprzedaż

Szczecin, Dąbie

2 pokoje 46 m2 8 275,11 zł/m2
Nowa oferta
Nowa oferta

Mieszkanie na sprzedaż

Szczecin, Dąbie

2 pokoje 48 m2 7 930,53 zł/m2
Nowa oferta
Nowa oferta

Mieszkanie na sprzedaż

Szczecin, Dąbie

2 pokoje 53 m2 11 792,45 zł/m2
Nowa oferta

pośrednik w obrocie nieruchomościami lic. PPRN 7291

Proszę wprowadzić poprawne imię i nazwisko
Proszę wprowadzić poprawny numer telefonu
Proszę wprowadzić poprawny adres e-mail
Proszę zaznaczyć wymagane zgody
Rozwiąż równanie:
16 8
Niepoprawny wynik