Mieszkanie na sprzedaż Stargard (gw)

2 pokoje
43.26 m²
10 402,22 zł/m2
parter
NWW-MS-60
Oblicz ratę kredytu

450 000 zł

Mieszkanie na sprzedaż
Nowa oferta

Szczegóły oferty

Symbol oferty NWW-MS-60
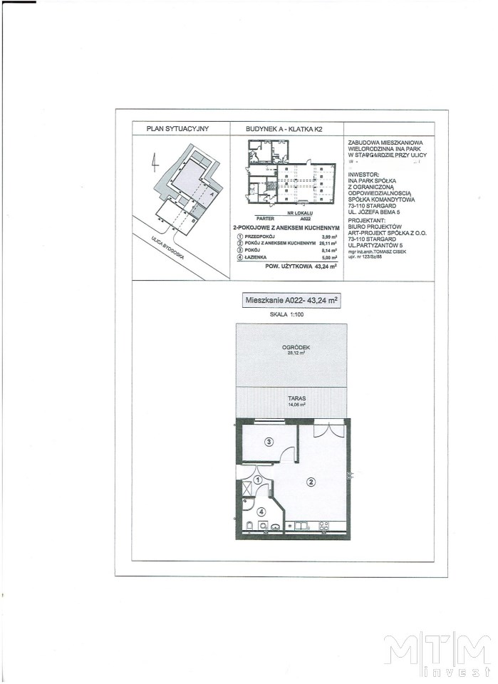
Powierzchnia 43,26 m²
Liczba pokoi 2
Piętro parter
Mateusz Malutko

Mateusz Malutko

pośrednik w obrocie nieruchomościami lic. PPRN 7291
Nr licencji: 7291

Napisz wiadomość 32 Ofert

Opis nieruchomości

Na sprzedaż mieszkanie z ogródkiem, w kameralnym budynku z 2018 roku.
Na powierzchnię 43,26 m2, składają się : pokój z aneksem kuchennym 26,11m2, sypialnia 8,14 m2, przedpokój 3,99 m2, łazienka wraz z toaletą 5 m2.
Do mieszkania przynależy taras 14,06 m2, płynnie przechodzący w ogródek 28,12m2 . Całość gruntu na zewnątrz, 42,18 m2, ogrodzono panelami siatkowymi.
Czynsz miesięczny w wys. 650 zł zawiera w sobie FR, zaliczki na zimną wodę, kanalizację, wywóz śmieci, ogrzewanie, naprawy bieżące, monitoring, sprzątanie, koszty zarządzania.
Ogrzewanie budynku realizowane jest własną kotłownią gazową. Mieszkania są rozliczane na podstawie odczytu indywidualnych podzielników.  
Cena zawiera wyposażenie widoczne na zdjęciach i podlega rozsądnym negocjacjom. Mieszkanie wolne od zaraz. 

Kalkulatory

Kalkulator kredytowy

Wysokość raty

PLN
%

Kalkulator kosztów

Podatek od czynności cywilno-prawnych

Taksa notarialna
(opłata notarialna)

Wniosek o wpis do KW

VAT od prowizji
agencji nieruchomości

VAT od taksy notarialnej
(opłaty notarialnej)

Prowizja agencji nieruchomości

Wypisy aktu notarialnego

Razem

Uwaga: mogą wystąpić dodatkowe opłaty za założenie księgi wieczystej oraz ustanowienie hipoteki.

PLN
PLN
PLN
PLN
PLN
PLN
%
PLN

pośrednik w obrocie nieruchomościami lic. PPRN 7291

Proszę wprowadzić poprawne imię i nazwisko
Proszę wprowadzić poprawny numer telefonu
Proszę wprowadzić poprawny adres e-mail
Proszę zaznaczyć wymagane zgody
Rozwiąż równanie:
26 9
Niepoprawny wynik