Działka na sprzedaż Kamień Pomorski (gw), Połchowo

9401.00 m²
148,92 zł/m2
PKN-GS-1059
Oblicz ratę kredytu

1 400 000 zł

Działka na sprzedaż
Nowa oferta

Szczegóły oferty

Symbol oferty PKN-GS-1059
Powierzchnia 9 401,00 m²
Przeznaczenie działki budowlana
Standard
Wymiary działki 40x110 m
Zagosp. działki niezagospodarowana
Ukształtowanie działki płaska
Kształt działki nieregularny
Ogrodzenie działki brak
Gaz brak
Woda brak
Dojazd asfalt
Otoczenie rzeka
Odl. do przedszkola [m] 8 000 m
Prąd w ulicy
Kanalizacja brak
Odległość od plaży 20 000 m
Pomieszczenia
Mateusz Malutko

Mateusz Malutko

pośrednik w obrocie nieruchomościami lic. PPRN 7291
Nr licencji: 7291

Napisz wiadomość 35 Ofert

Opis nieruchomości

Działka budowlana o powierzchni 9401m2 przy wodzie w Połchowie gm. Kamień Pomorski.

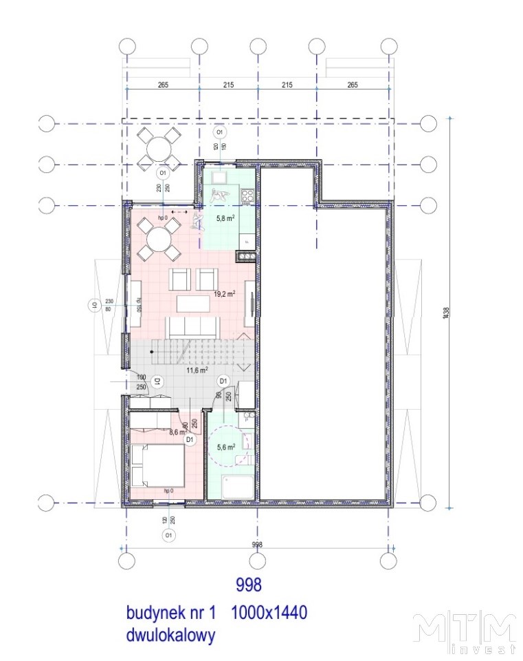
Dla działki są wydane warunki zabudowy na 10 domów mieszkalnych z czego planuje się budowę 8 domów 2 lokalowych i 2 jednolokalowe. W zdjęciach pokazany plan zagospodarowania terenu oraz wizualizacje proponowanych domów. Teren sąsiaduje z działką administrowaną przez Urząd Morski w Szczecinie, która stanowi już obszar wodny czyli praktycznie działka jest w pierwszej linii od wody.
W pobliżu są tereny objęte miejscowym planem zagospodarowania przestrzennego z przeznaczeniem na budownictwo mieszkaniowe, usługi turystyczne w tym plaża na działkach gminnych.
Przy plaży w miejscowym planie jest możliwość budowy pirsów do cumowania łodzi.
Teren działki jest częściowo zadrzewiony (stare drzewa), drobne drzewa i krzewy już są usunięte, w miarę płaska, nie ogrodzona.
Z działki widok na sąsiadującą za wodą Wyspę Chrząszczewską.
W sąsiedztwie pensjonat, zabudowania starsze wsi Połchowo oraz nowo powstające domy i budynki rekreacyjne.
Z mediów dostępny przy działce jest prąd. Woda z własnego ujęcia (do chwili wybudowania wodociągu), szambo (do wybudowania kanalizacji).
Dojazd drogą asfaltową.
Najbliższe większe miejscowości to Kamień Pomorski i Wolin.
Podana cena jest ceną netto, należy doliczyć VAT.


 

Lokalizacja nieruchomości

Kalkulatory

Kalkulator kredytowy

Wysokość raty

PLN
%

Kalkulator kosztów

Podatek od czynności cywilno-prawnych

Taksa notarialna
(opłata notarialna)

Wniosek o wpis do KW

VAT od prowizji
agencji nieruchomości

VAT od taksy notarialnej
(opłaty notarialnej)

Prowizja agencji nieruchomości

Wypisy aktu notarialnego

Razem

Uwaga: mogą wystąpić dodatkowe opłaty za założenie księgi wieczystej oraz ustanowienie hipoteki.

PLN
PLN
PLN
PLN
PLN
PLN
%
PLN

Podobne oferty

Działka na sprzedaż

Kamień Pomorski (gw), Połchowo

23 000 m2 50,00 zł/m2

Działka na sprzedaż

Kamień Pomorski (gw), Połchowo

20 000 m2 60,00 zł/m2

pośrednik w obrocie nieruchomościami lic. PPRN 7291

Proszę wprowadzić poprawne imię i nazwisko
Proszę wprowadzić poprawny numer telefonu
Proszę wprowadzić poprawny adres e-mail
Proszę zaznaczyć wymagane zgody
Rozwiąż równanie:
30 2
Niepoprawny wynik